Villa a schiera in vendita

San Martino In Rio, Via Ospedale
€ 339.000
6 locali 6 locali
200 Mq 200 Mq
2 bagni 2 bagni

Villa a schiera in vendita

San Martino In Rio, Via Ospedale

Descrizione annuncio

VILLETTA ANGOLARE CON GIARDINO


SAN MARTINO IN RIO - Proponiamo in vendita villetta angolare con ingresso indipendente e giardino di proprietà, in posizione strategica e vicina a tutti i principali servizi.
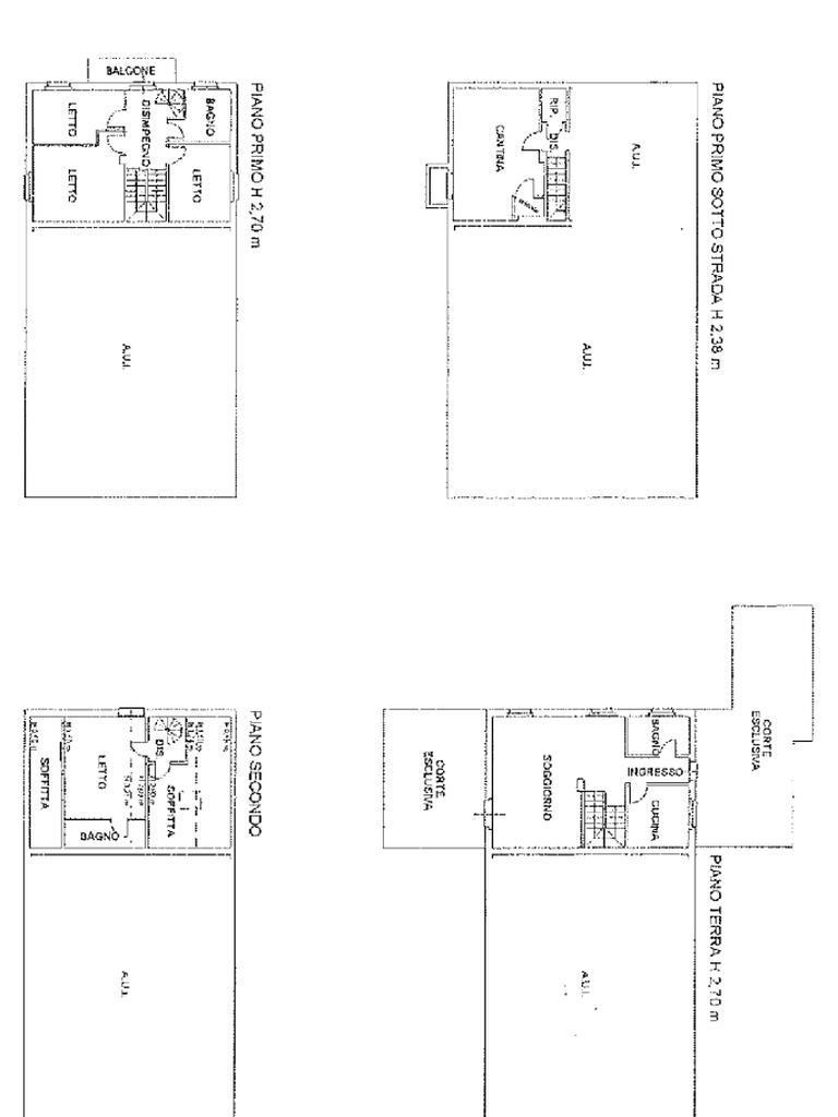
L'immobile si sviluppa su tre livelli ed è così composto;
Al piano terra troviamo un ampio soggiorno con accesso diretto al giardino, cucina abitabilee bagno finestrato con box doccia.
Al primo piano tre camere da letto, di cui due matrimoniali e una singola, bagno finestrato e balcone.
All'ultimo piano troviamo una zona sottotetto da personalizzare in base alle proprie necessità.
Completa la proprietà al piano seminterrato una taverna e un garage doppio.
Libero da subito.


PER AVERE MAGGIORI INFORMAZIONI O PRENOTARE LA TUA VISITA PRIVATA CHIAMACI ALLO 0522.198.0393 oppure al 333.6556342

Mostra tutto

Nelle vicinanze

Ricariche auto elettriche Ricariche auto elettriche
San Martino Cottafavi | EnelX
660 m
Scuole Scuole
Scuole
280 m
Farmacia Farmacia
Farmacia
410 m
Supermercati Supermercati
COOP
140 m
Supermercati
840 m
Mostra tutto

Caratteristiche

Rif.:
61191121
Piano:
3 (Piano su più livelli)
Box:
1
Balconi:
1
Camere da letto:
3
Arredamento:
Assente
Mostra tutto
Prezzo Prezzo
€ 339.000
Rata mutuo Rata mutuo
€ 1.603 / mese
Proponi il tuo prezzoProponi il tuo prezzo

Classe Energetica

F
F
F
F
F
F
F
F
F
Anno di costruzione:
1993
Riscaldamento:
Autonomo
Tipo impianto:
A radiatori
Tipo alimentazione:
Metano

Ti interessa visionare l'immobile?

Fissa un appuntamento  Fissa un appuntamento

Richiedi informazioni

Clicca su Leggi per aprire l'informativa
* Questi campi sono obbligatori

Calcola il tuo mutuo

Semplice e senza impegno
Anticipo

( % )
Mutuo

( % )

pochi semplici passi

inserisci i tuoi dati
Questionario completato
Grazie per aver richiesto un appuntamento senza impegno con un nostro Consulente del Credito e Assicurativo.

Hai inserito correttamente tutti i dati necessari e a breve riceverai una e-mail con un link da convalidare per inviare i tuoi dati.
Affiliato
Studio Beta Srl
Via Roma, 39 42018 San Martino In Rio (RE)

Il nostro staff


  • Krisa Laci
    Collaboratrice

  • Antonio Petito
    Responsabile

  • Amna Fatima Shaikh
    Collaboratrice

  • Elisa Salvigni
    Responsabile

  • Piero Ruffino
    Affiliato
Via Roma, 39 42018 San Martino In Rio (RE)
Zona: San Martino in Rio-Campogalliano
Mostra su mappa
Orari: Dal lunedì al venerdì dalle ore 9:00 alle 13:00 e dalle ore 15:00 alle ore 20:00. Sabato dalle ore 9:00 alle ore 18:00 (orario continuato)
Affiliato
Studio Beta Srl
Via Roma, 39 42018 San Martino In Rio (RE)

2026 Tecnocasa Franchising S.p.A. - P. IVA 08365160152 - Via Monte Bianco 60/A 20089 Rozzano (MI). Ogni agenzia ha un proprio titolare ed è autonoma. Privacy policy | Policy utilizzo | Cookie policy