Rustico in vendita

San Martino In Rio, Via Gazzata - Gazzata
€ 135.000
Prezzo aggiornato
5 locali 5 locali
330 Mq 330 Mq
1 bagno 1 bagno

Rustico in vendita

San Martino In Rio, Via Gazzata - Gazzata

Descrizione annuncio

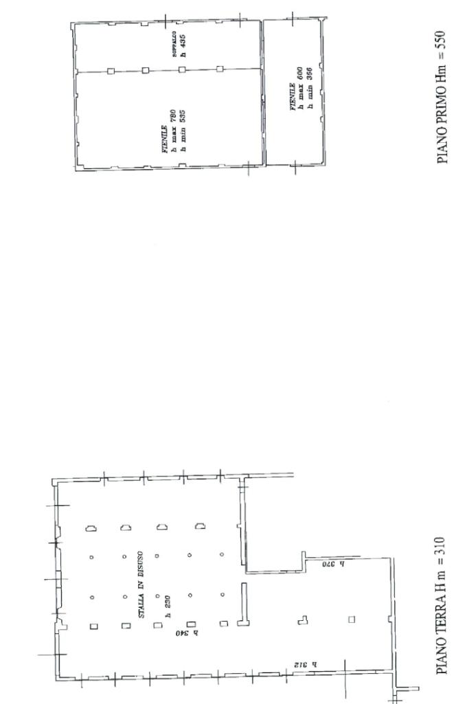
RUSTICO CON TERRENO

GAZZATA-In posizione tranquilla e immersa nel verde, proponiamo in vendita rustico completamente da ristrutturare, ideale per chi desidera realizzare un progetto immobiliare di grande valore.

L'immobile attualmente è disposto su tre livelli e grazie alle sue ampie dimensioni e alla favorevole disposizione degli spazi, offre la possibilità di sviluppare fino a 5/6 appartamenti indipendenti oppure eleganti villette a schiera o bifamiliari, perfette sia per uso residenziale che per investimento.

Soluzione perfetta per imprese, investitori o privati alla ricerca di un progetto personalizzabile, con ottime prospettive di valorizzazione.

Completa la proprietà 1 ettaro di terreno.

PER AVERE MAGGIORI INFORMAZIONI O PRENOTARE LA TUA VISITA PRIVATA CONTATTACI 0522.1980393 oppure 333.6556342

Mostra tutto

Nelle vicinanze

Scuole Scuole
Scuole
2,2 Km
Madre Teresa di Calcutta
2,3 Km
Farmacia Farmacia
Farmacia
2,5 Km
Supermercati Supermercati
COOP
2,6 Km
Mostra tutto

Caratteristiche

Rif.:
61197710
Piano:
2 di 2 (Piano su più livelli)
Camere da letto:
3
Arredamento:
Assente
Condizionamento:
Assente
Ascensore:
No
Mostra tutto
Prezzo Prezzo
€ 135.000
Rata mutuo Rata mutuo
€ 636 / mese
Spese annue Spese annue
€ 0
Proponi il tuo prezzoProponi il tuo prezzo

Classe Energetica

G
G
G
G
G
G
G
G
G
EP invernale del fabbricato:
EP estiva del fabbricato:
Riscaldamento:
Autonomo
Tipo impianto:
A radiatori
Tipo alimentazione:
Metano

Prezzo ridotto di €1 (3%%)

Ti interessa visionare l'immobile?

Fissa un appuntamento  Fissa un appuntamento

Richiedi informazioni

Clicca su Leggi per aprire l'informativa
* Questi campi sono obbligatori

Calcola il tuo mutuo

Semplice e senza impegno
Anticipo

( % )
Mutuo

( % )

pochi semplici passi

inserisci i tuoi dati
Questionario completato
Grazie per aver richiesto un appuntamento senza impegno con un nostro Consulente del Credito e Assicurativo.

Hai inserito correttamente tutti i dati necessari e a breve riceverai una e-mail con un link da convalidare per inviare i tuoi dati.
Affiliato
Studio Beta Srl
Via Roma, 39 42018 San Martino In Rio (RE)

Il nostro staff


  • Krisa Laci
    Collaboratrice

  • Antonio Petito
    Responsabile

  • Amna Fatima Shaikh
    Collaboratrice

  • Elisa Salvigni
    Responsabile

  • Piero Ruffino
    Affiliato
Via Roma, 39 42018 San Martino In Rio (RE)
Zona: San Martino in Rio-Campogalliano
Mostra su mappa
Orari: Dal lunedì al venerdì dalle ore 9:00 alle 13:00 e dalle ore 15:00 alle ore 20:00. Sabato dalle ore 9:00 alle ore 18:00 (orario continuato)
Affiliato
Studio Beta Srl
Via Roma, 39 42018 San Martino In Rio (RE)

2026 Tecnocasa Franchising S.p.A. - P. IVA 08365160152 - Via Monte Bianco 60/A 20089 Rozzano (MI). Ogni agenzia ha un proprio titolare ed è autonoma. Privacy policy | Policy utilizzo | Cookie policy