Palazzina in vendita

San Martino In Rio, Corso Umberto I
€ 350.000
13 locali 13 locali
360 Mq 360 Mq
3 bagni 3 bagni

Palazzina in vendita

San Martino In Rio, Corso Umberto I

Descrizione annuncio

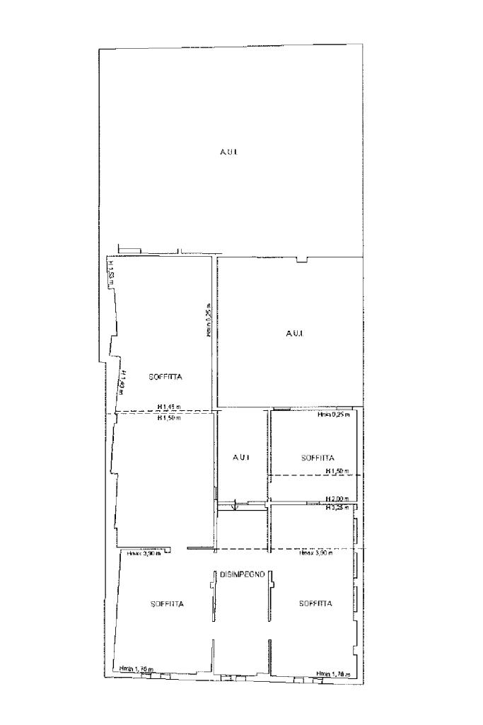
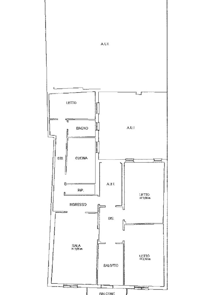
SAN MARTINO IN RIO - PROPRIETA' TERRA CIELO IN CENTRO STORICO

Nel cuore del centro storico, proponiamo in vendita una prestigiosa proprietà terra-cielo da ristrutturare, con ampie potenzialità di sviluppo.

La struttura si sviluppa su più livelli e offre la possibilità di creare una palazzina con più unità abitative, ideale per chi desidera realizzare un progetto residenziale di pregio.

Caratteristiche principali:

Superficie totale: ampia metratura su più livelli

Corte interna privata, perfetta per creare uno spazio verde

Zona servizi al piano terra, dove troviamo un autorimessa e possibilità di locali cantine

Posizione centrale, a pochi passi da tutti i servizi del paese

La proprietà si presta a vari progetti, grazie alla sua versatilità e alla posizione privilegiata. Una vera e propria opportunità per chi desidera investire nel recupero e nella valorizzazione di un immobile dal grande potenziale.

Possibilità di frazionamento in più unità abitative, con la possibilità di creare appartamenti di diverse metrature, adatti a diverse esigenze.

PER MAGGIORI INFORMAZIONI O FISSARE UNA VISITA PRIVATA CONTATTACI AL 0522.1724850 O 348.6866572

Mostra tutto

Nelle vicinanze

Ricariche auto elettriche Ricariche auto elettriche
San Martino Cottafavi | EnelX
630 m
Scuole Scuole
Scuole
280 m
Farmacia Farmacia
Farmacia
190 m
Supermercati Supermercati
COOP
230 m
Supermercati
800 m
Mostra tutto

Caratteristiche

Rif.:
61039909
Piano:
Su più livelli di 3
Totale piani:
3
Box:
1
Balconi:
1
Camere da letto:
5
Mostra tutto
Prezzo Prezzo
€ 350.000
Rata mutuo Rata mutuo
€ 1.613 / mese
Proponi il tuo prezzoProponi il tuo prezzo

Classe Energetica

G
G
G
G
G
G
G
G
G
EP invernale del fabbricato:
EP estiva del fabbricato:
Anno di costruzione:
1900
Riscaldamento:
Autonomo
Tipo impianto:
A radiatori
Tipo alimentazione:
Metano

Ti interessa visionare l'immobile?

Fissa un appuntamento  Fissa un appuntamento

Richiedi informazioni

* Questi campi sono obbligatori

Calcola il tuo mutuo

Semplice e senza impegno
Anticipo

( % )
Mutuo

( % )

pochi semplici passi

inserisci i tuoi dati
Questionario completato
Grazie per aver richiesto un appuntamento senza impegno con un nostro Consulente del Credito e Assicurativo.

Hai inserito correttamente tutti i dati necessari e a breve riceverai una e-mail con un link da convalidare per inviare i tuoi dati.
Affiliato
Studio Beta Srl
Via Roma, 39 42018 San Martino In Rio (RE)

Il nostro staff


  • Krisa Laci
    Collaboratrice

  • Filippo Lo Mascolo
    Collaboratore

  • Antonio Petito
    Responsabile

  • Amna Fatima Shaikh
    Collaboratrice

  • Piero Ruffino
    Affiliato
Via Roma, 39 42018 San Martino In Rio (RE)
Zona: San Martino in Rio-Campogalliano
Mostra su mappa
Orari: Dal lunedì al venerdì dalle ore 9:00 alle 13:00 e dalle ore 15:00 alle ore 20:00. Sabato dalle ore 9:00 alle ore 18:00 (orario continuato)
Affiliato
Studio Beta Srl
Via Roma, 39 42018 San Martino In Rio (RE)

2025 Tecnocasa Franchising S.p.A. - P. IVA 08365160152 - Via Monte Bianco 60/A 20089 Rozzano (MI). Ogni agenzia ha un proprio titolare ed è autonoma. Privacy policy | Policy utilizzo | Cookie policy